|
Vila Mušľa
Vilka bola kompletne zrekonštruovaná v roku 2016, nachádza sa tu len 5 bytových jednotiek. Ideálna poloha vilky, len 50 m od pláže (spred vilky je vidieť more), zároveň v tichej ulici, asi 7-8 minút pešej chôdze vzdialené od Juniorparku a Piazza City. V okolí je množstvo malých obchodíkov a reštaurácií. Krásne ubytovanie. Na základe výborných skúseností z predchádzajúcich sezón sme si vilku prenajali na celý júl výlučne pre našich klientov.
4-lôžkové apartmány sú moderné, veľmi pekné, s velkými terasami. Každý apartmán tvorí obývacia izba s kuchynským kútom a rozťahovacím dvojlôžkôm + spálňa s manželskou posteľou + kúpelňa so sprchovým boxom. Apartmány sú nadštandardne vybavené : - digitálna klimatizácia na diaľkové ovládanie - TV-LCD-SAT - mikrovlnka - WIFI-FREE pripojenie priamo na apartmáne - trezor - automatická práčka v spoločných priestoroch rezidencie
Parkovanie na vyhradených uzamykateľných parkovacích miestach pred vilkou.
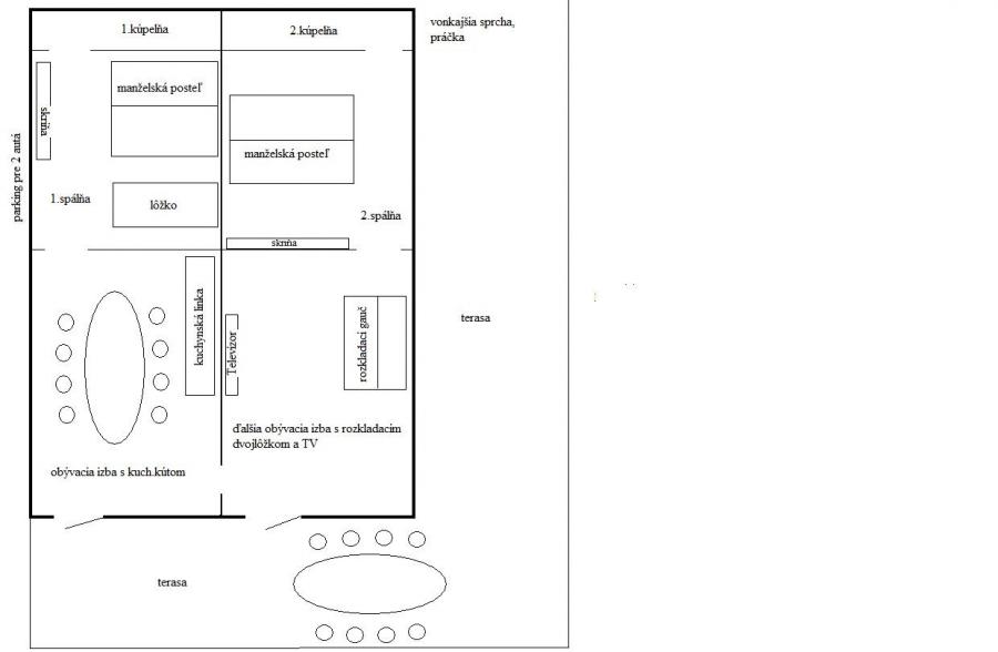
7-lôžkový apartmán : bol vytvorený prepojením dvoch 4-lôžkových apartmánov na zníženom prízemí vilky. Apartmán tak tvoria dve samostatné spálne (jedna dvojlôžková + tretie lôžko, druhá dvojlôžková) + priestranná obývacia izba s rozkladacím dvojlôžkom + veľká kuchyňa s jedálenským stolom pre 7 osôb + dve identické kúpelne so sprch.boxom, WC, umývadlom a bidetom + veľká terasa so sedením pre 8 osôb. V cene sú dve číslované parkovacie miesta pri vilke. Rovnaká nadštandardná výbava ako pri 4-lôžkových apartmánoch
Prvá kúpelňa v 7-lôžk. apartmáne
Druhá kúpelňa v 7-lôžk. apartmáne
Trojlôžková spálňa v 7-lôžk.apartmáne
Dvojlôžková spálňa v 7-lôžk.apartmáne
Obývacia izba v 7-lôžk. apartmáne
Terasa pred 7-lôžk. apartmánom
|
Celá mapa
Obývacia izba 4-lôžkové apartmány
Obývacia izba 4-lôžkové apartmány
Terasa 4-lôžk.apartmán 2.posch.
|
Ceny 2026 - 8-dňové pobyty
| 4-lôžkový apartmán (B1) | 7-lôžkový apartmán (C1) | |
| 09.5.-16.5. | 694 € 780 € | 917 € 1030 € |
| 16.5.-23.5. | 694 € 780 € | 917 € 1030 € |
| 23.5.-30.5. | 694 € 780 € | 917 € 1030 € |
| 30.5.-06.6. | 715 € 803 € | 937 € 1053 € |
| 06.6.-13.6. | 715 € 803 € | 937 € 1053 € |
| 13.6.-20.6. | 803 € 902 € | 1064 € 1195 € |
| 20.6.-27.6. | 869 € 976 € | 1145 € 1287 € |
| 27.6.-04.7. | 1031 € 1158 € | 1380 € 1550 € |
| 04.7.-11.7. | 1065 € 1197 € | 1429 € 1606 € |
| 11.7.-18.7. | 1113 € 1251 € | 1496 € 1681 € |
| 18.7.-25.7. | 1113 € 1251 € | 1496 € 1681 € |
| 25.7.-01.8. | 1113 € 1251 € | 1496 € 1681 € |
| 01.8.-08.8. | 1186 € 1333 € | 1599 € 1797 € |
| 08.8.-15.8. | 1216 € 1366 € | 1641 € 1844 € |
| 15.8.-22.8. | 1216 € 1366 € | 1641 € 1844 € |
| 22.8.-29.8. | 1067 € 1199 € | 1428 € 1605 € |
| 29.8.-05.9. | 851 € 956 € | 1120 € 1258 € |
| 05.9.-12.9. | 746 € 838 € | 968 € 1088 € |
| 12.9.-19.9. | 715 € 803 € | 937 € 1053 € |
| 19.9.-26.9. | 715 € 803 € | 937 € 1053 € |
11% Zľava FIRST MOMENT
Cenníku pre 8-dňové pobyty a v
Cenníku pre 11-dňové pobyty
| Apartmán(y) ešte voľné | Všetky apartmány už obsadené |

Spolupracujeme s Benefit Plus

